
如果说家是生活方式的构筑
那么对于空间的诠释
则是我们摆脱外界束缚的温壳
设计中不同的质感肌理,场景里独特的搭配交融
让奢雅托举出鲜活,用自然重燃起生活的真谛
If we say that home is the construction of lifestyle, then the interpretation of space is our warm shell that allows us to escape from the constraints of the outside world

本案座落于大兴安岭之畔、松嫩平原之滨的内蒙古阿荣旗,这里民族风情、历史积淀与自然风光交融汇聚,有着独特的边疆魅力。虽然与易昂设计团队相隔1800公里,但易昂设计仍然以专业的设计能力,超强的落地把控能力。运筹帷幄于千里之外,最终寻求到在奢雅人居空间与在地自由活力中的平衡和联结,最终作品以中轴对称创立空间骨架,将生活动线和自然景观触达生活的各个维度,让家的气息从奢雅中来,到自然中去。
PART 01 · 负一层&夹层
LIFE INSPIRATION
空间交响:生活灵感



多彩色块的拼接在米白色空间中漫游,洋溢着热情活力的姿态,拥抱烟火与日常。负一层与夹层是起居、娱乐、亲子、茶室多空间的交响曲,设计师与业主进行了充分沟通,以无限灵感打造了贴近生活的多功能区域。



大理石水纹背景墙面与一层客厅相呼应,空间层次与依存蕴意深厚;艺术落地灯以雕塑之形怀抱希冀,与台球桌回响热情心绪……丰富的故事与细腻的情感便由此徐徐而生。



彩色地毯的油画风与奇趣风、活力四射的台球桌、舒适亮眼的游戏圈椅……多处的明朗色块和鲜活家居彼此映衬、交相辉映,营造出别具一格的视觉体验。


偷得浮生,饮茶片刻之闲。茶室区域的流纹玻璃茶桌、玻璃扶手圈椅尤为点睛,与黑色原石茶凳既对立、又呼应,清风缥缈的空灵气息从天窗而至,逐渐以小见大的开阔迎面而至,雅俗便可共赏。



茶室以对的位置,设计师将车库入室,以半开墙壁在空间设计上巧妙融入自然景观,向外眺望,以细微之处见广阔天地。植物墙体采用自动浇水和施肥系统,保证了通风和采光,让自然回归真实。

在景观小品的布置上,设计师通过光影的明暗对比与虚实的巧妙处理,将自然形态与功能展现融为一体。




夹层处的休闲放松区域是适合亲子共度的空间,也是家中欢笑最多之处,设计师用柔软家居材质和温和弧度线条将其温柔包裹,将外界纷扰情绪一一摒弃,只享受此时此刻的甜蜜时间。


功能空间的布局秩序十分巧妙,设计师将功能性与生活做了平衡和连接,分而不隔、彼此回响,在各自拥有属于自己天地的同时,也保持着整体的通透与开放,营造出一种开阔而明亮的氛围,令人心旷神怡。
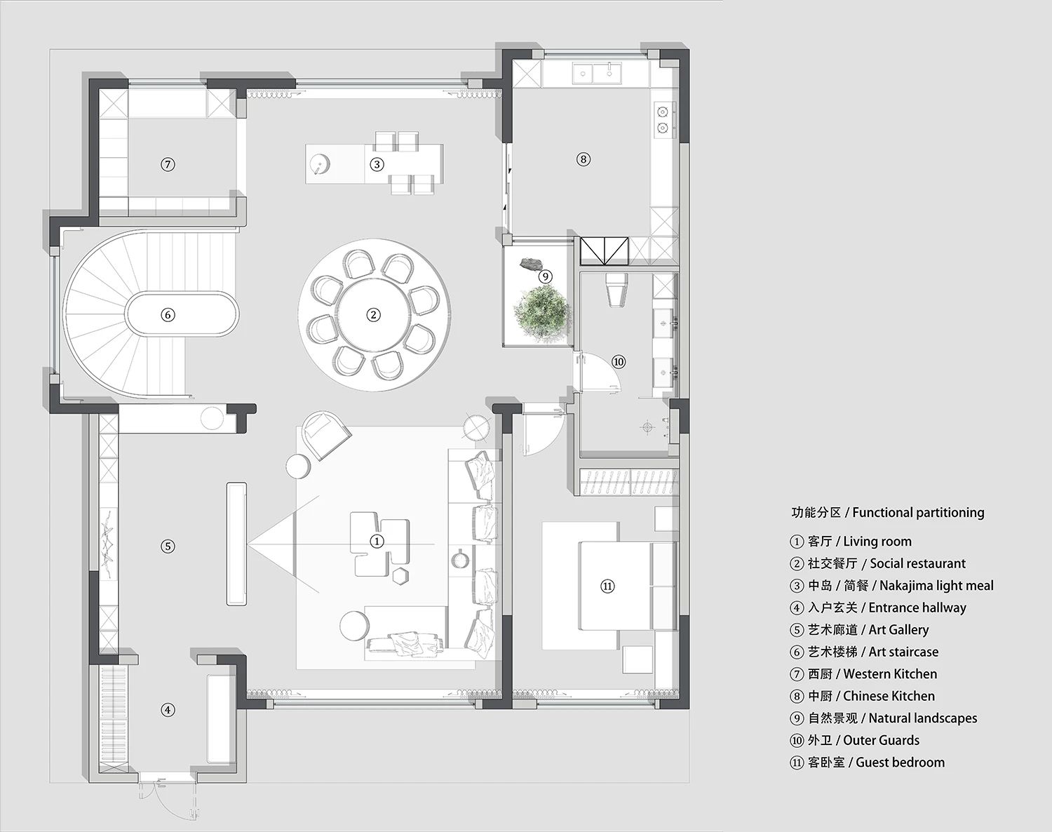
PART 02 · 一层
LUXURY AND ELEGANCE
空间序章:奢雅入境




光与影的交融,诠释了岁月的流动,也呈现出时光流转带来的崭新气息。
入户归家的氛围充盈着白与灰低饱和但高级的色调,结合简洁的构建线条,渲染出奢雅纯粹的美学领域。
晶莹剔透的水晶吊灯聚焦空间,层叠映射的光圈平添了一抹诗意的惊喜。



大理石背景照壁、不规则艺术拼接地毯和石质方正茶几荟萃多重质感,丰富了空间层次,激发出更多蓬勃生机。



落地窗及地宽广,米色沙发组合略有弧度相围,遥相呼应餐厅区域的同材质休闲圈椅,空间的通透与延伸感尽数描绘。人脸侧影的艺术灯饰以惊艳笔触,将墙体的空白完美填补,洋溢着奢华与浪漫气息。



设计师将餐厅的位置有意前挪,位于客厅与餐厅空间的中心视角处,家人宾朋可在视线汇聚处举杯共饮,尽享欢愉时刻。自然的造景角落也是设计师匠心独运的设计所在,用石块、土壤和绿植打造的真实梦境,奇幻至妙、生机盎然。


大理石电视墙体后方是别样天地,水晶艺术雕塑的引领下间隔出摆放艺术品的玻璃展柜区间,借设计之手,艺术浪漫中透露奢享,以视觉情绪带动自由舒适的美妙氛围。
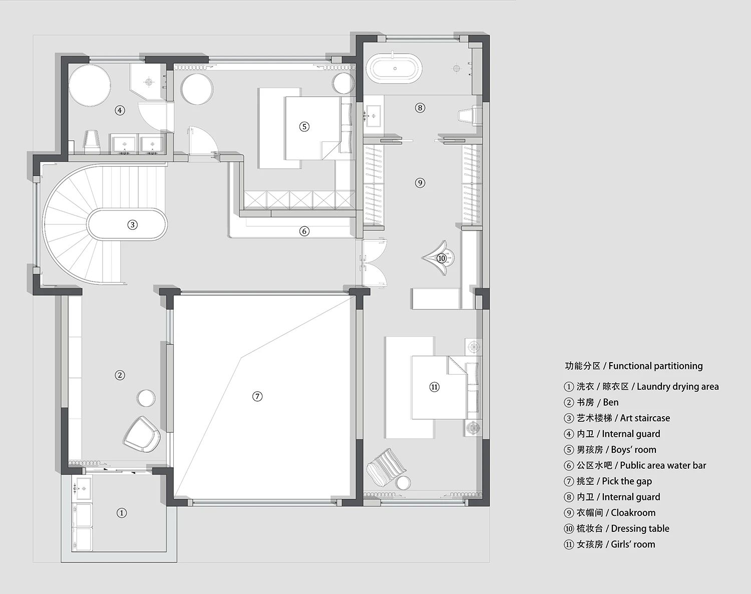
PART 03 · 二层
COMFORTABLE ADAPTATION
空间诠释:惬意适从



设计师对于各处卧室的构思,不止对居住领域的简单布局,更像是对生活态度的深刻诠释。
客卧之一以棕褐色调打造自然温和的整体氛围,褐色与红色点缀在深邃的空间中更显奢华,巧妙寻得完美的平衡。
玻璃门衣柜简约而不失高雅格调,彰显出大气利落的质感,秩序之中连接一日起居。


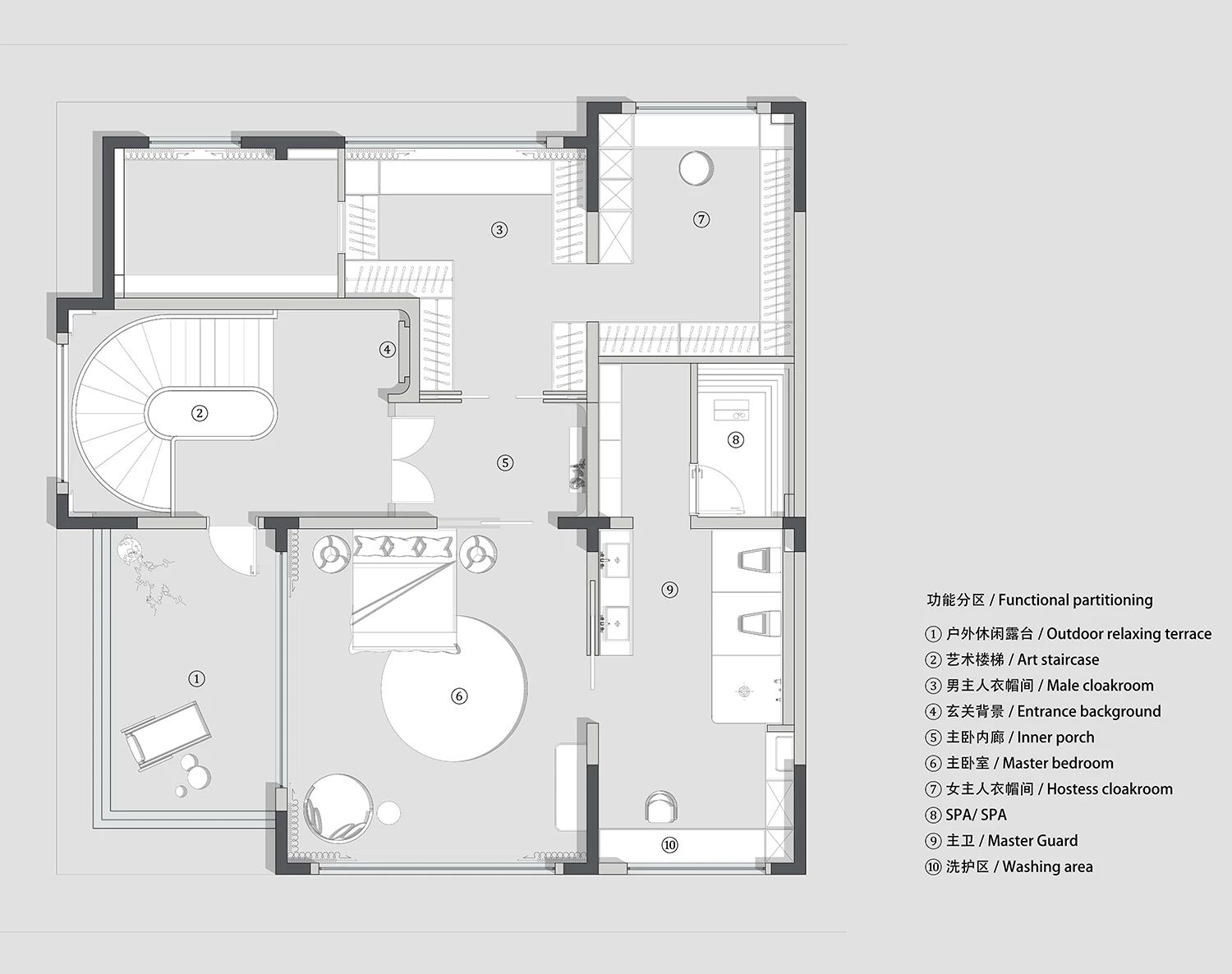
PART 04 · 三层
LIFE INSPIRATION
空间交响:生活灵感




迈向位于三层的主卧,空间的层次感随着步伐的推进而愈发鲜明。瓷质花瓶、玻璃桌台与海上落日的油画三者融合出艺术觉知,以简而雅的线条构造出返璞归真的精神境界。落日余晖折射相临,满目皆是温柔暖意。


主卧以纯白色调放松所有身心,空间更多留给身体去参与和感受,海洋色系的地毯安定人心,白沙浮动的时刻,用身体、情感和心灵去“观看”,才能真正获得独属于自我的时刻。



设计师在休息空间中大量使用醇厚质感,让奢华并非只是物质上的享受,它更是精神与心灵深度交融的体现。空间纯净所散发的无瑕之美,才是构筑起高雅奢华的正确生活方式。
PART 05 · 艺术楼梯
RISING AND FALLING TURNS
空间交叠:起伏转折


承上启下与起伏转折,楼梯是空间连接的纽带,在本案中不同层级的设计各有特色,彰显大宅之美。


底层与一层之间的金属质感回形楼梯,散发出独特艺术韵味。光源下形成别具美感的写意线条,打消了点线面的呆板,整个空间更添几分自由灵动的气质。



区别于金属楼梯的精致华美,二层楼梯空间以水泥材质呈现踏实落感。灰墨绿色墙体与深黑色台阶围合而上,台阶下的灯带温和有力,迂回曲折的动线恰似时光轨迹的引领,整个空间被赋予踏实的力量,悄悄迸发着关于艺术美的魅力,还原品质生活的内涵。


随着空间的缓缓升温,奢华与雅致、自然与艺术悄然交融,生活的能量在不经意间绽放。家的恒久魅力,在每一个细腻之处缓缓浮现、悄然镌刻,化作永恒的记忆篇章。
从来处来,到去处去。
生活的真谛在不经意间完美诠释,奢华的品质精髓融入细微,最终,融入自然。
原始平面图

地下一层

一层

二层

三层
设计平面图

地下一层

夹层

一层

二层

三层
项目名称丨1000㎡ 墅、从奢雅中来,到自然中去
项目地址丨内蒙古 阿荣旗
项目面积丨1000㎡
设计时间丨2021年12月
竣工时间丨2024年 8 月
设计公司丨易昂设计
总设计师丨杨昂
设计团队丨杨志昌 田骏喆 齐旭
内容策划丨清歌传媒
项目摄影丨张瑞华
News
Center
关注我们
设计团队秉承设计理念,创造出类型丰富的项目果这些项目成果无一不体现出我们对理论与设计的实践,拥有着各种不同风格的设计团队。
是一家由在室内设计界从业多年的优秀设计师创办并经营的、以设计事务为主的创作型设计机构。酒店及商业空间等规划设计、陈设配饰设计。
地址:武侯区天仁路387号大鼎世纪广场2号楼1405室
E-MAIL:328144700@qq.com
2025-12-05
2025-11-05
2025-10-18
2025-08-30
2025-08-28
设计资讯